Monoambiente en Venta
Código: 197869
9 de Julio 500, R8400 San Carlos de Bariloche, Río Negro, Argentina, San Carlos De Bariloche, Rio Negro, Argentina.
USD65.000
Compartir esta Propiedad
Descripción de la Propiedad
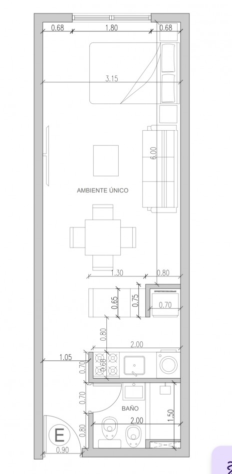
Monoambiente en venta – 32 m² – Zona residencial
Monoambiente en venta ubicado en una exclusiva zona residencial, a minutos de Av. 12 de Octubre, con rápido acceso al centro de la ciudad.
Unidad 2° D, al contrafrente, con una superficie de 32 m², dentro de un edificio moderno de 4 plantas.
Entorno tranquilo
Excelente conectividad
Ideal para inversión o primera vivienda
Proyecto en desarrollo con entrega estimada en 24 meses.