Departamento Pozo
Código: 133455
Saavedra 100 Baril, San Carlos De Bariloche, Rio Negro, Argentina.
USD51.905

Compartir esta Propiedad
Descripción de la Propiedad
l edificio se encuentra estratégicamente ubicado frente a la plaza Belgrano, una de las plazas más grandes y emblemáticas de la ciudad. Con una distancia de tan solo 400 metros del centro de la ciudad, su ubicación ofrece una gran accesibilidad a los locales más importantes. Además, estar en esta zona tranquila proporciona un entorno ideal para disfrutar de espacios verdes y agradables paseos al aire libre.
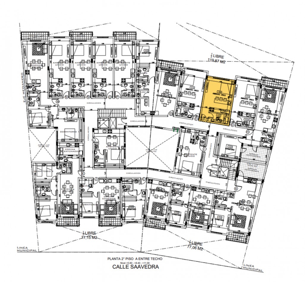
El proyecto consiste en una construcción dividida en 6 plantas, dentro de las cuales los usos de las mismas será estacionamiento , vivienda colectiva de uso residencial como también turístico y un gran local situado en planta baja el cual tendrá como uso preferencial cafeteria , la propuesta del mismo es crear un local que resalte tanto en la zona, como así también se vuelva uno de los lugares preferenciales de la ciudad.
El edificio cuenta con un diseño moderno y elegante, con amplias ventanas que permiten una excelente iluminación natural en todas sus unidades. Además, sus espacios interiores están cuidadosamente diseñados para ofrecer comodidad y funcionalidad.
El valor corresponde a la Unidad "L" ubicada en el 2do piso.
Financiación:
Entrega USD 12.977.-
48 Cuotas de USD 811.-